Modularer serieller Wohnungsbau, Linden
[Fokus]

[Aufgabe]
Die Möglich Hausbau GmbH kontaktierte uns mit dem Ziel, eine nachhaltige Planungssystematik zu entwickeln. Ziel war der Bau eines modularen Gebäudes in Linden, das sich sowohl dem Markt als auch den zukünftigen Bedürfnissen der Bewohner anpassen kann. Dabei sollte die Förderfähigkeit durch die Einhaltung von QNG-Richtlinien (Qualitätssiegel Nachhaltiges Gebäude) gewährleistet werden.
[Qualitätsmonitoring]
Auf Grundlage der Aufgabenstellung setzten wir den Kriterienkatalog der DGNB ein, um interne Leitplanken und messbare Ziele für die Planung zu schaffen. Dabei legten wir den Fokus auf die Nachhaltigkeitsdimensionen Ökologie, Ökonomie, Soziokulturelles, Technik und Prozess.
[Optimierungspotentiale]

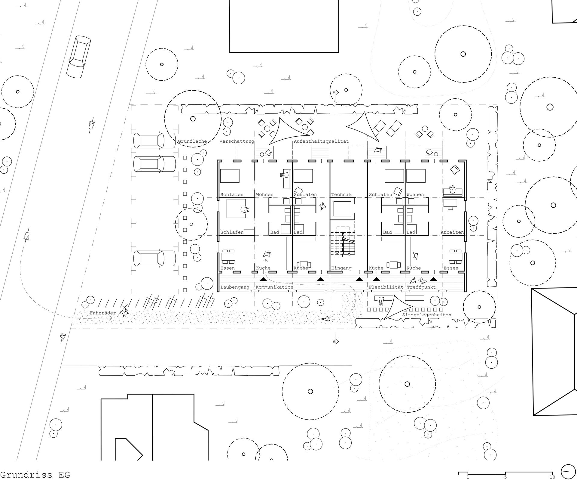
[Nachhaltige Planung]
Wir entwickelten eine flexible Raumstruktur, die sich aus einem Mix von Raum- und Elementmodulen aus Holz zusammensetzt. Dabei wurde die Möglichkeit geschaffen, Grundrisse bei Bedarf zu verändern oder zu erweitern. Durch die serielle Vorfertigung der Module konnten sowohl die Bauzeit als auch der Materialeinsatz erheblich optimiert werden. Zusätzlich wurde eine effiziente Energieversorgung in das Konzept integriert, um den Energieverbrauch langfristig zu minimieren.





[Materialkonzeption]
